Zatvori
Proizvodi
    0 Korpa
    Vaša korpa je prazna.
    Pretraga
    Filteri
    Jezik

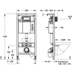
    Ugradni vodokotlic REHAU MEPA P31

    Proizvođač:
    -Za suvu konstrukciju, za pojedinačnu ugradnju na masivni zid ili u zid sa šiljcima od laganog okvira,
    -Za montažu na šinu na masivni zid ili zid od lakih okvira
    -Podesivo po visini: 240 mm
    -Visina instalacije od do: 0 - 240 mm
    -Konstrukcijska visina: 120 mm
    16.814,00 (rsd)
    PDV uključen
    📍 Mogućnost ličnog preuzimanja – Obilićev Venac 39a, 18000 Niš 🚚 Besplatna dostava za porudžbine preko 6.999 RSD (do 20 kg)
    Troškovi dostave obračunavaju se u korpi.
    * Rok isporuke za online kupovinu je 1-2 radna dana. * Pomoć prilikom kupovine: 063 / 637 075 radnim danima od 08-16H.
    Šifra proizvoda: 10601
    kom
    Dostupnost: Ima na stanju
    Opis proizvoda
    Visina sistema 1.200 mm, samonoseći montažni ram, pogodan za oblaganje gipsanim vlaknima ili gipsanim pločama, profilni okvir premazani prahom, oslonci za noge podesivi po visini 0 - 240 mm sa integrisanim antiklizajućim, Osnovne ploče mogu da se rotiraju, Dubina pogodna za ugradnja u UV-profile UV 50 i UV 75 i MEPA produžni profil, Označavanje centra i merača za tačno poravnanje centra ose i visine ugradnje elementa, Ugradni vodokotlić Sanicontrol tip P31, Dvostruko ili jednokratno ispiranje ili start/stop tehnologija ispiranja, Vodokotlić kompletno montiran, odobrenje i CE znak prema DIN EN 14 055, levi ili zadnji ulazni otvor za vodu, zapremina ispiranja 6/3 l (fabrička postavka), količine ispiranja podesive paralelno: velika zapremina ispiranja 6 - 7,5 l, bez stepenica, mala zapremina ispiranja 3 - 4,5 l, bez stepena, maksimalna zapremina ispiranja 7,5 l, sa fabričkom postavkom, omogućeno trenutno ispiranje, izolovan kondenzacionom vodom, 10 godina snabdevanja rezervnim delovima, mehaničko prednje aktiviranje, WC priključna krivina, 3 puta podešavanje dubine